2 McCurtain Street, Mullingar, Co. Westmeath, N91 D1H5

Asking Price : € 165,000
Terraced House For Sale by Private Treaty
Virtual Tour Web Video
Sale Agreed
+ 26
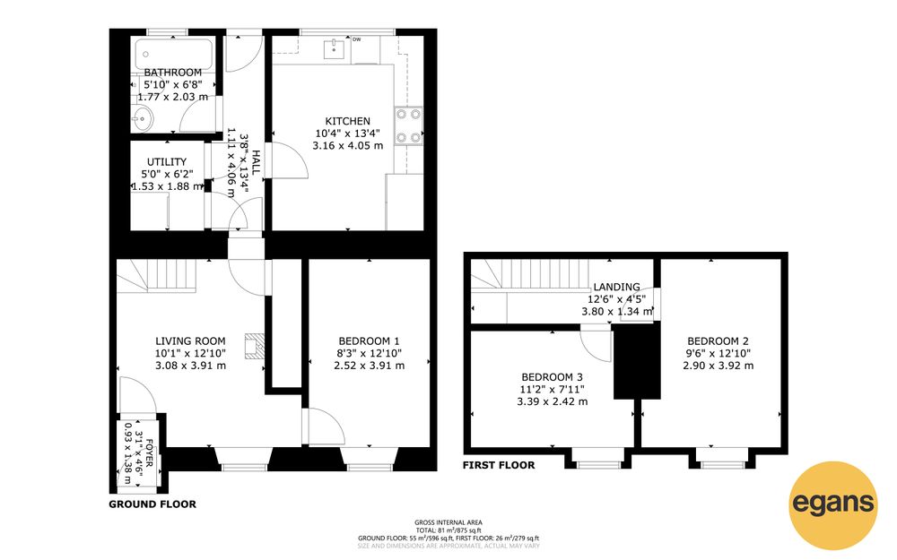
Floor Area
875 Sq.ft / 81.29 Sq.m
Bed(s)
3

Details

This traditional 3-bedroom terraced house, located in a quiet yet central part of Mullingar, presents a fantastic opportunity for those looking to create a home with some work and investment. While the property is in need of modernisation, it retains much of its original charm and offers a solid foundation to work with. It is ideal for buyers looking to put their personal touch on a property in a prime location, just minutes from the town centre. The accommodation comprises 3 Bedrooms ( 1 Downstairs), Kitchen, Sitting Room and Bathroom all of which has been recently painted throughout. With a solid fuel stove in the sitting room, on-street parking, and a great location near the town centre, the property has excellent potential to become a comfortable home or investment property. Viewing is recommended with sole selling agents.

Accommodation

Features

  • Town Centre Property
  • In need of some updating
  • Solid fuel stove in sitting room
  • On Street Parking
  • Ideal starter home

Neighbourhood

2 McCurtain Street, Mullingar, Co. Westmeath, N91 D1H5,

John Shaw

...