



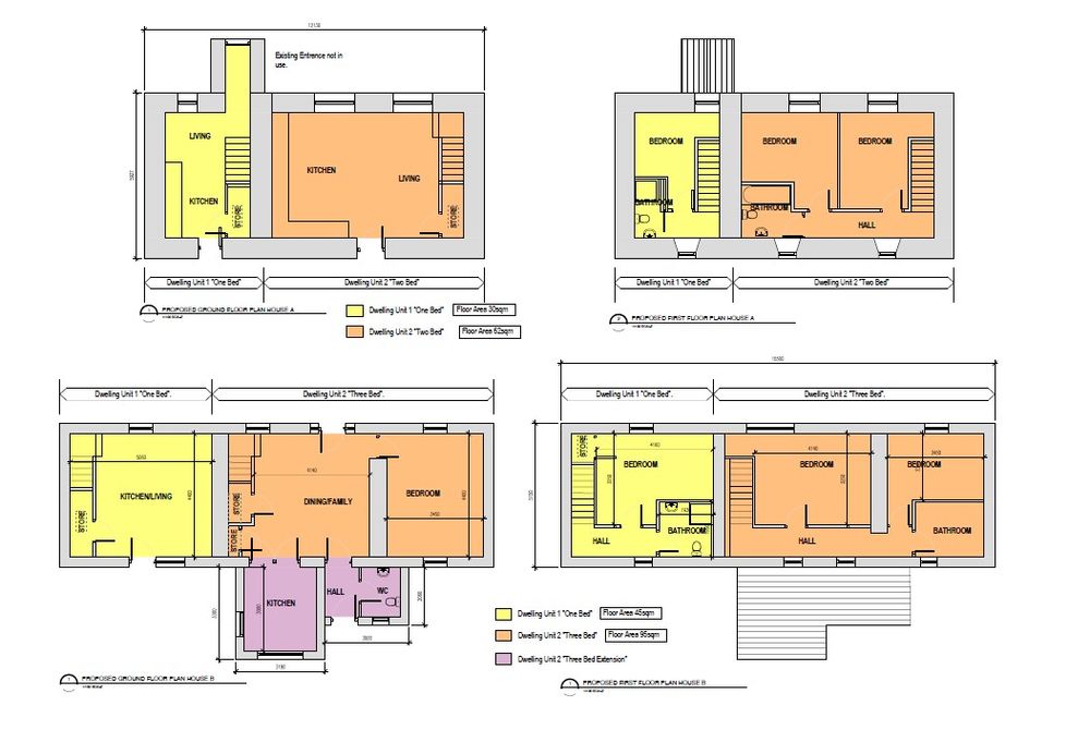
Investment Opportunity Two Buildings with Four Apartments Tenants in Situ.
An excellent opportunity to acquire a recently upgraded well-maintained investment property comprising two separate buildings, each containing:
One two-bedroom apartment
One one-bedroom apartment
The property therefore offers a total of four self-contained residential units. All apartments are currently occupied with established tenants, and the property is being sold with tenants in situ, providing immediate rental income from day one. This investment benefits from a good rental yield, making it an ideal addition to an existing portfolio or a turnkey opportunity for investors seeking a steady income stream. Further details, rental figures, and tenancy information available upon request.
Yellow House & Mill House , Bunnanaddan, Ballymote, Co. Sligo, F56 KW40