


Landmark Town Centre Holding – Main Street Moate Co. Westmeath
A rare opportunity to acquire a substantial and strategically positioned towncentre holding in the very heart of Moate.
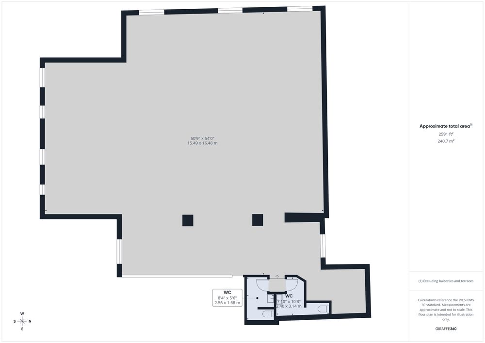
This portfolio comprises a collection of prominent Main Street properties including the former Tanyard public house (now closed), the well-known Mil Building (formerly five apartments with the benefit of planning permission for same), together with additional adjoining three-storey buildings. The holding also includes a valuable adjoining car park. The over all property exends to approx 0.64 acres.
While the buildings are currently in varying condition with some requiring full renovation the true strength of this opportunity lies in its scale, location and future potential.
With extensive Main Street frontage and a significant town-centre footprint, the properties present clear scope for residential, mixed-use or commercial redevelopment (subject to planning permission). Given the ongoing demand for housing and rental accommodation in Moate and the wider Midlands region, the redevelopment potential is particularly compelling.
Moate continues to benefit from its strong community base and strategic connectivity to the M6 motorway, making it an increasingly attractive location for both residential and commercial investment.
Opportunities of this nature combining location scale and redevelopment potential in one cohesive holding — are increasingly rare.
This is a chance not just to acquire property, but to shape a meaningful part of Moates Main Street future.
Further information and planning details available upon request.
Dr. Cuppaige's, The Tanyard, Main Street, Moate, Co. Westmeath, N37 E7W2