



Laragan Collooney, Co. Sligo, F91 A393.
4-Bedroom Detached House with Garage/Workshop for Sale by Private Treaty
This spacious 4-bedroom detached home is ideally situated in a popular commuter area just outside Collooney. Set on a generous site of circa 0.79 of an acre, the property features ample storage sheds to the rear and a large Garage Workshop located just off the main site, perfect for tradespeople, or additional storage.
While the house would benefit from some cosmetic upgrading, it's warm and inviting with both oil and solid-fuel central heating already in place.
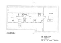
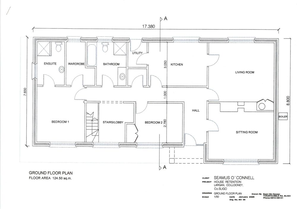
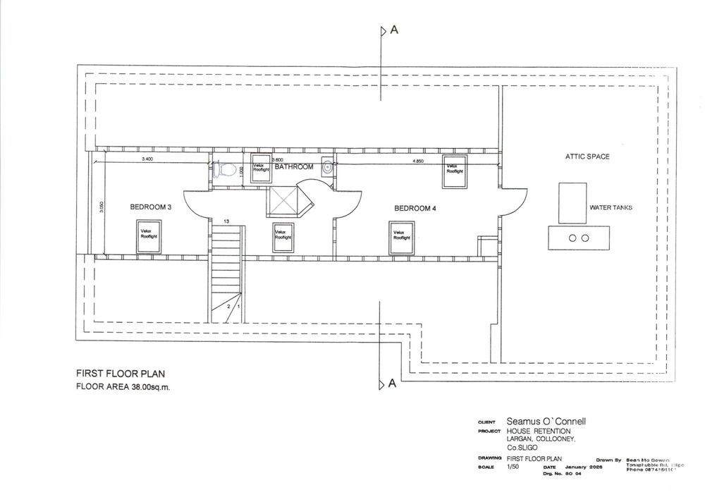
Inside the property extends to circa 162.50sqmts and accommodation comprises of:
4 spacious bedrooms (including 1 ensuite)
Ground-floor bathroom and first-floor shower room
Generous living areas
This property offers an ideal opportunity for those seeking a comfortable family home with great potential in a convenient rural location close to all amenities.
Located along the L2107 Collooney to Coolaney road, 2.5km from Collooney and 12km from Sligo town.
Viewing strictly by appointment.
F91 A393
Timber Floor.
Front Aspect, Timber Floor, Gas fire insert in open fire.
Back aspect, tiled floor, fitted units.
Back aspect, solid fuel stove with back boiler.
Off Kitchen, tiled floor, back door.
Front aspect, timber floor. Walk in closet 2.9m x 1.25m.
Spacious ensuite, fully tiled, WHB, WC & Shower.
Front aspect, timber floor, built in wardrobe.
Fully tiled, WHB, WC, Bath & separate Shower unit.
Incorporates Stairs; ideal home office.
Timber floor, velux window, storage space.
Timber floor, velux window, storage room 2.9m x 3.2m.
Fully tiled, WHB, WC & Shower cubicle.
Workshop / Garage
Laragan, Collooney, Co. Sligo, F91 A393