

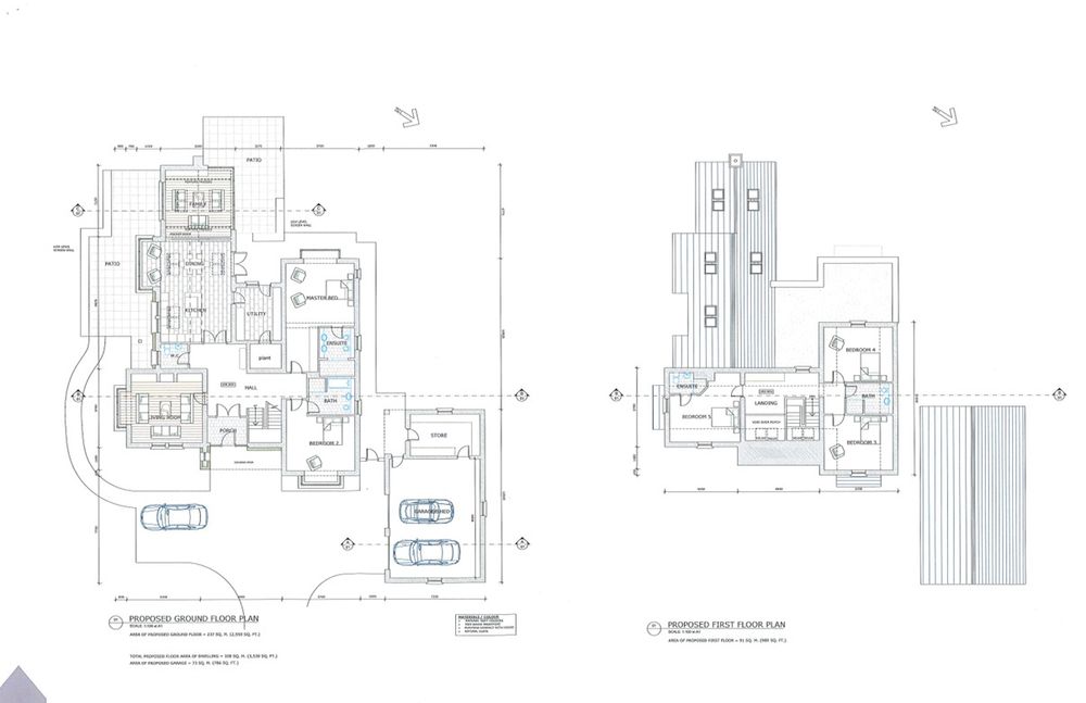
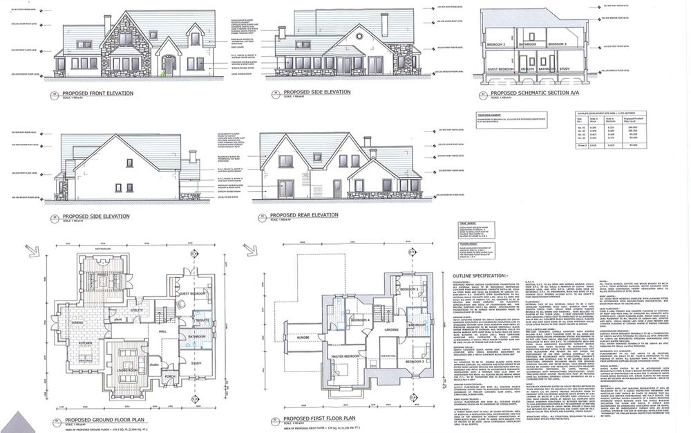
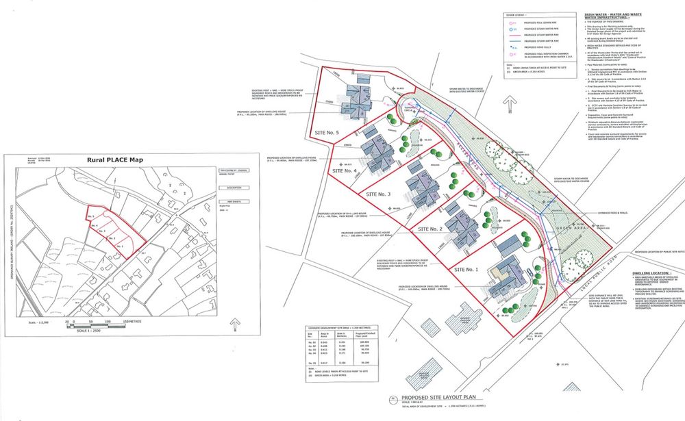
Hodson Bay- An exceptional site measuring approx. 3.311 acres, located in the highly sought-after area of Hodson Bay. This property boasts full planning permission for the construction of five detached luxury homes, offering a unique opportunity for developers or investors.
Situated in a picturesque and tranquil setting, this site combines scenic surroundings with excellent development potential.
Don`t miss the chance to create a premium residential enclave in this prime location.
Hodson Bay, located just outside Athlone, is a picturesque and tranquil area known for its stunning natural beauty and close proximity to Lough Ree. This sought-after location offers a perfect blend of peaceful countryside living with easy access to Athlone town`s amenities, including schools, shopping, and dining options.
The area is a haven for outdoor enthusiasts, with boating, fishing, and scenic walking trails readily available. Hodson Bay is also home to the renowned Hodson Bay Hotel and golf courses, making it a desirable location for those seeking a balanced lifestyle both relaxation and recreation. Its idyllic charm and connectivity make Hodson Bay a prime residential location.
Folio number RN15141F. Measuring 3.311 Acres. With full planning permission for 5 Detached Luxury homes.
Barrymore, Hodson Bay , Athlone, Co. Roscommon,