


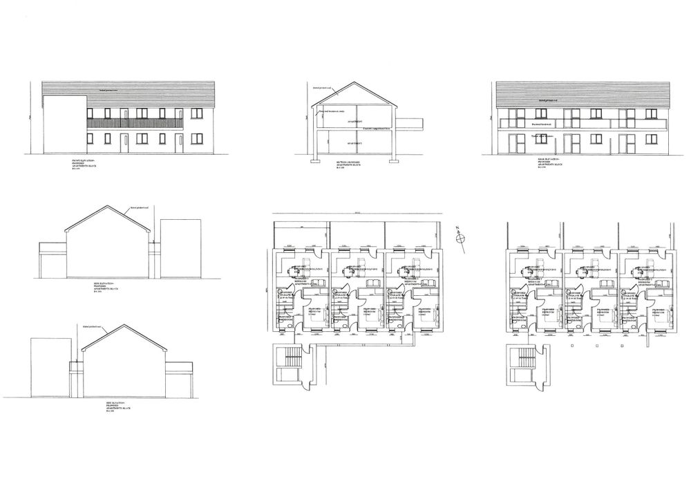
Prime residential development site extending to c. 0.5 acre. with planning permission granted for the construction of 2 No. x 2 Bed Residential Units and 6 No. x 1 Bed Apartments, and all associated works.
The proposed developments to include 2 No. x Blocks, comprising:
Block 1 –
2 No. x 2 Bed Town Houses
Block 2 –
Ground Floor: 3 No. x 1 Bed Apts
First Floor: 3 No. x 1 Bed Apts
Map for identification purposes only.
Located on the R725, just off the Tullow Road Roundabout at O'Brien Road/N80
Credit union, medical centre, Lidl supermarket, schools, shops and church all in the immediate area.
C. 700m from Carlow town centre.
Staplestown Road, Carlow, Co. Carlow,