
Impressive Mixed Use Property in Prime Location
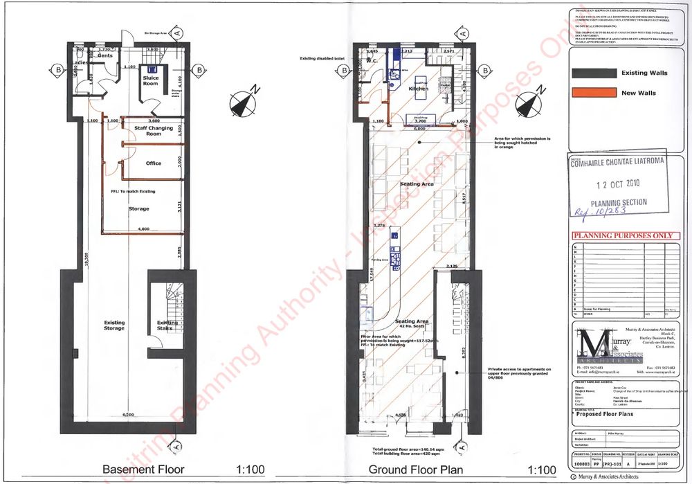
REA Brady is delighted to present for sale this outstanding investment opportunity located in a prominent position on Main Street, Carrick-on-Shannon. Fully rebuilt and extensively renovated in 2007 to a high specification, this substantial mixed-use property offers immediate and long-term income potential through a combination of a significant restaurant/coffee shop and two generously proportioned residential apartments. The ground floor comprises a fully fitted and tastefully decorated restaurant and coffee shop, offering seating for 42 patrons with capacity to increase further. Spanning approximately 140 sq. meters, this bright and inviting commercial space boasts an exceptional frontage onto Main Street, providing maximum visibility in an area known for heavy footfall and high pedestrian traffic. Positioned just steps from the renowned Bush Hotel and surrounded by other thriving local businesses, this location offers a built-in customer base and excellent exposure. The restaurant was originally fitted in 2010 and has seen continuous upgrades, ensuring a modern and attractive environment for diners. In addition, the first floor is the well-equipped kitchen and supporting service areas, enhancing the overall operational flow. It should be noted that the lower ground floor mirrors the restaurant’s footprint, with ample ceiling height and dual stair access, as well as a ground-level rear exit. This area presents a compelling opportunity for further expansion of the restaurant offering, a private dining venue, event space, or the development of complementary commercial uses such as a wine bar, bakery or ready meal kitchen. The Residential Apartments are accessed via a dedicated entrance at street level, located on the upper floor these are two exceptionally large one-bedroom apartments, offering sizes more commonly found in two- or three-bedroom units. Apartment 1 measures approx. 74.45 sq. meters and benefits from a large attic space that could potentially be developed (subject to planning), offering further rental income potential or owner-occupier expansion. Apartment 2 measures approx. 57.31 sq. meters and is equally well-proportioned. Both apartments are in excellent condition, with bright interiors, good layouts, and modern finishes – ready to generate immediate rental income in a town where quality residential rentals are in strong demand. The 2007 redevelopment was comprehensive and meticulous, with the installation of new concrete floors, full re-wiring and re-plumbing throughout, and full fire compliance. The result is a solid, future-proofed building with low maintenance requirements – a major asset for investors. This is a rare opportunity to acquire a high-performing, multi-functional property in Leitrim’s most vibrant town. Whether you’re an investor seeking solid rental returns or an owner-occupier seeking a live/work arrangement with growth capacity, this property is not to be missed. Viewings are strictly by appointment only through Joe Brady at REA Brady. Call 071 96 22444 to arrange a private viewing.
Located on Main Street in Carrick on Shannon in the center of the town.
The Property is been sold "As Is". All contents (excepting some personal items" will be sold with the property.
Excellent Frontage to Main Street.
HIstoric Shop Front of high quality in Excellent Condition
Great Main Street Footfall
Fabric of the building is in excellent condition
Access to rear by both vehicle and pedestrian.
UPVC windows
Public Sewer
Public Water
Fibre Optic Broadband
Electricity
Main Street, Carrick-On-Shannon, Co. Leitrim, N41 X310,